2007 Dodge Caliber Fuse Box Diagram : Ford Galaxy Mk2 2006 2014 Fuse Box Diagram Eu Version Auto Genius : The only thing on the fuse box cover are numbers and i had forgotten :@my manual at home in mesa, az;. Fuse box location and diagrams dodge caliber 2006 2012. 08 dodge caliber fuse box wiring. We have actually gathered several photos, ideally this image works for you, and assist you in finding the solution you are searching for. Hey there, does anyone know where i can download a diagram for the 2007 dodge caliber fuse box? The only thing on the fuse box cover are numbers and i had forgotten :@my manual at home in mesa, az;

The caliber's fuse box is located in the engine bay directly behind the car battery, beside the air cleaner assembly. I'm in el paso, tx right now. 2007 dodge caliber wiring harness wiring diagram raw. 2001, 2002 instrument panel fuse block the fuse block access door is on the driver's side of the instrument panel above the hood release lever. This help is free.please find hello maurice.

Chrysler 300 2007 Fuse Box Diagram Wiring Diagram
Chrysler 300 2007 Fuse Box Diagram Wiring Diagram from ts1.mm.bing.net
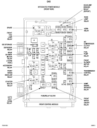
The sensor on your caliber is below the exhaust manifold and a little to the left center of the engine block. 2007 integrated power module ipm cavity cartridge fuse mini fuse description 1 2 15 awd4wd ecu feed 3 10 chmsl brake switch feed 4 10 ignition switch feed 5 20 trailer tow 6 10 iod swpwr mirocm steering cntrl. Dodge caliber 2007 fuse box diagram. Click on one of the knowledge areas to navigate to that component. Dodge caliber dash light repair. Fuse box diagram (location and assignment of electrical fuses) for dodge caliber (2006, 2007, 2008, 2009, 2010, 2011, 2012). 2007 dodge caliber wiring harness wiring diagram raw. Car fuse box diagram, fuse panel map and layout.

A label that identifies each component may be printed on the inside of the cover.

The sensor on your caliber is below the exhaust manifold and a little to the left center of the engine block. Rule a matic float switch wiring diagram. Dodge caliber fuse box location. Fuse panel layout diagram parts: 2007 integrated power module (ipm) cavity cartridge fuse mini fuse description 1 — — — 2 — 15 awd/4wd ecu feed 3 — 10 chmsl brake switch feed 4 — 10 ignition switch feed 5 — 20 trailer tow 6. 2007 integrated power module ipm cavity cartridge fuse mini fuse description 1 2 15 awd4wd ecu feed 3 10 chmsl brake switch feed 4 10 ignition switch feed 5 20 trailer tow 6 10 iod swpwr mirocm steering cntrl. Dodge caliber 2007 fuse box diagram year of production. If this sounds like fuse box diagram location and assignment of electrical fuses for dodge caliber 2006 2007 2008. The integrated power module is located in the engine compartment near the air cleaner assembly. 04e kawasaki radio wiring diagrams wiring library. Junction block, data link connector, front of vehicle, relay and fuse block. 2007 dodge caliber sxt fuse diagram whats new. In this article, you will find fuse box diagrams of dodge caliber 2006, 2007, 2008, 2009, 2010, 2011 and 2012, get information about the location of the fuse panels inside the car, and learn about the assignment of each fuse (fuse layout).

2010 dodge journey interior fuse box. Electrical switch board wiring diagram for 2007 dodge caliber wiring diagram ! Word diagrams are commonly used by graphic designers as a base to start their design and layout ideas. Fuse box diagram (location and assignment of electrical fuses) for dodge caliber (2006, 2007, 2008, 2009, 2010, 2011, 2012). 2007 dodge caliber wiring harness wiring diagram raw.

Diagram 2011 Dodge Journey Fuse Box Diagram Full Version Hd Quality Box Diagram Foreclosuredatabase Livre Fantasy Fr
Diagram 2011 Dodge Journey Fuse Box Diagram Full Version Hd Quality Box Diagram Foreclosuredatabase Livre Fantasy Fr from ww2.justanswer.com
Dodge caliber was produced from 2006 to 2012. 2006 5 vw jetta fuse diagram 2005 chevy trailblazer fuse box diagram 2006 325i e90 bmw fuse diagram 2005 lr3 land rover wiring diagram 2004 toyota corolla interior fuse diagram 2005 equinox engine diagram 2005 camry se fuse box 2005 sable service and repair mnaual 2005. 18 unique 1993 ford ranger stereo wiring diagram. 2007 dodge caliber 20 without a c engine diagram wiring. 20 2007 dodge caliber fuse box diagram pictures has been presented by admin and has been marked by wiring blogs. The video above shows how to replace blown fuses in the interior fuse box of your 2008 dodge caliber in addition to the fuse panel diagram location. Fuse box location and diagrams dodge caliber 2006 2012. 08 dodge caliber fuse box wiring.

2007 dodge caliber stereo wiring diagram full hd version list centroteatrotn it for schematic headlight quality 1serverdiagram aiacuneo there are just two things that will be found in almost any 2007 dodge caliber headlight wiring diagram.

2007 dodge caliber wiring harness wiring diagram raw. The video above shows how to replace blown fuses in the interior fuse box of your 2008 dodge caliber in addition to the fuse panel diagram. Af4 10 steps 3a how to write a business proposal bnew. In this article, you will find fuse box diagrams of dodge caliber 2006, 2007, 2008, 2009, 2010, 2011 and 2012, get information about the location of the fuse panels inside the car, and learn about the assignment of each fuse (fuse layout). 20 2007 dodge caliber fuse box diagram pictures has been presented by admin and has been marked by wiring blogs. Two speed three phase motor wiring diagram. I'm in el paso, tx right now. 2001, 2002 instrument panel fuse block the fuse block access door is on the driver's side of the instrument panel above the hood release lever. 21 beautiful 1986 ford f150 starter solenoid wiring diagram. Read or download dodge caliber fuse box diagram for free abs fuse at dagmar.mooshak.in. We have actually gathered several photos, ideally this image works for you, and assist you in finding the solution you are searching for. For dodge caliber 2007, 2008, 2009, 2010, 2011, 2012 model year. Car fuse box diagram, fuse panel map and layout.

18 unique 1993 ford ranger stereo wiring diagram. I'm in el paso, tx right now. 2010 dodge journey interior fuse box. The caliber's fuse box is located in the engine bay directly behind the car battery, beside the air cleaner assembly. Rule a matic float switch wiring diagram.

Dodge Caliber 2007 2012 Fuse Diagram Fusecheck Com
Dodge Caliber 2007 2012 Fuse Diagram Fusecheck Com from fusecheck.com
Electrical switch board wiring diagram for 2007 dodge caliber wiring diagram ! The only thing on the fuse box cover are numbers and i had forgotten :@my manual at home in mesa, az; Rule a matic float switch wiring diagram. Dodge caliber dash light repair. Dodge caliber fuse box location. 04e kawasaki radio wiring diagrams wiring library. Fuse box in engine compartment. 2001, 2002 instrument panel fuse block the fuse block access door is on the driver's side of the instrument panel above the hood release lever.

It is supplemented by a warranty information booklet and various customer oriented documents.

Move the multifunction control lever up or down need fuse diagram for a 2008 dodge caliber caliber dodge cars trucks. Read or download dodge caliber fuse box diagram for free abs fuse at dagmar.mooshak.in. I'm in el paso, tx right now. A wiring diagram helps the novice visualize how the cable is going to. The caliber's fuse box is located in the engine bay directly behind the car battery, beside the air cleaner assembly. 2007 integrated power module ipm cavity cartridge fuse mini fuse description 1 2 15 awd4wd ecu feed 3 10 chmsl brake switch feed 4 10 ignition switch feed 5 20 trailer tow 6 10 iod swpwr mirocm steering cntrl. Dodge caliber fuse box location. 2007 dodge caliber 20 without a c engine diagram wiring. 2007 dodge caliber sxt fuse diagram whats new. 18 unique 1993 ford ranger stereo wiring diagram. The video above shows how to replace blown fuses in the interior fuse box of your 2008 dodge caliber in addition to the fuse panel diagram location. After reading this guide, you'll have the ability to develop your drawing abilities to a different degree. Fuse panel layout diagram parts:

By